Saturday April 18, 2026

Medical White-glove Co-op on Park Avenue

Upper East Side
Medical White-glove Co-op on Park Avenue

LISTING DETAILS FOR Medical White-glove Co-op on Park Avenue

Unit Size 1500 SQ. FT
Type Sale
Price $975,000

DESCRIPTION

Medical White-glove Co-op on Park Avenue

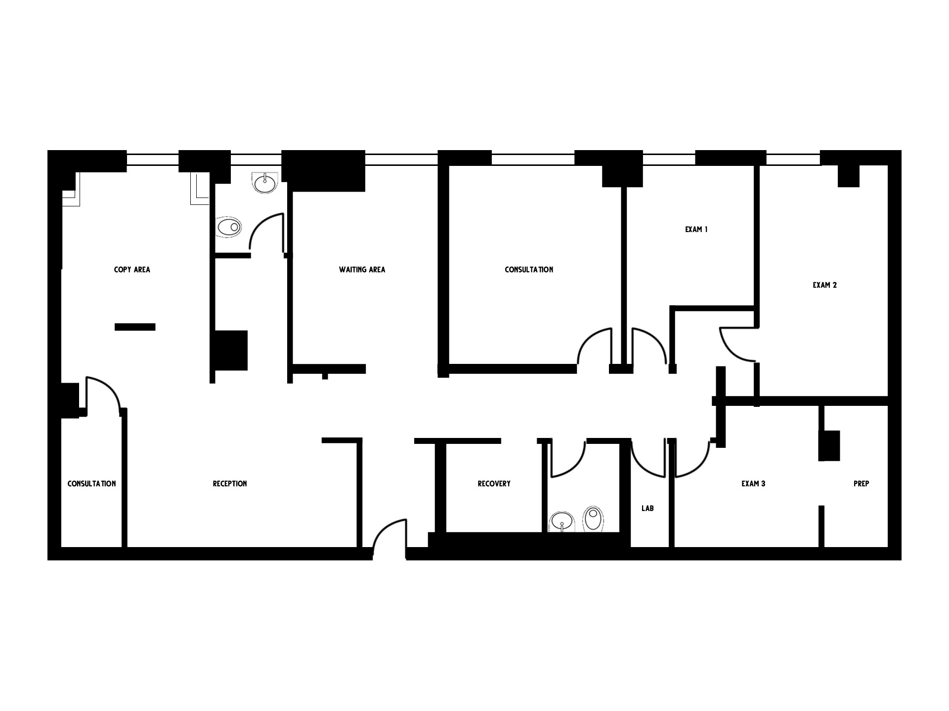
An exceptional opportunity to own a medical or professional office within a prestigious white-glove co-op on Park Avenue. This full-service building offers 24/7 doorman coverage, ensuring security and a high-end experience at all times. Ideally positioned just off the lobby, the 1,500 SF suite offers privacy and convenience, perfect for welcoming patients or clients.

The well-designed layout includes a reception and waiting area, adjacent administrative office, three exam rooms, a private consultation space, a recovery room, and two restrooms. The space is move-in ready, allowing for an effortless start for your business or medical practice.

The co-op permits up to 40% financing. Monthly maintenance and real estate taxes total $7,833.

This field is for validation purposes and should be left unchanged.
Get more info about this space

If you would like to receive additional information about this space, or you would like to setup a tour, please submit your details here.

Interest(Required)

Medical White-glove Co-op on Park Avenue

Get your top 10 report

Our insider knowledge and expertise included.
This field is for validation purposes and should be left unchanged.

Just tell us what you're looking for, and we'll get started.

We will filter through hundreds of NYC office listings for you and send a report directly to your inbox with the top 10 available office spaces that meet your needs. No fee to you!