Tuesday May 26, 2026

Lexington Avenue Partial Floor Office

Grand Central
Lexington Avenue Partial Floor Office

LISTING DETAILS FOR Lexington Avenue Partial Floor Office

Unit Size 2866 SQ. FT
Type Direct Lease
Price CALL FOR PRICING

DESCRIPTION

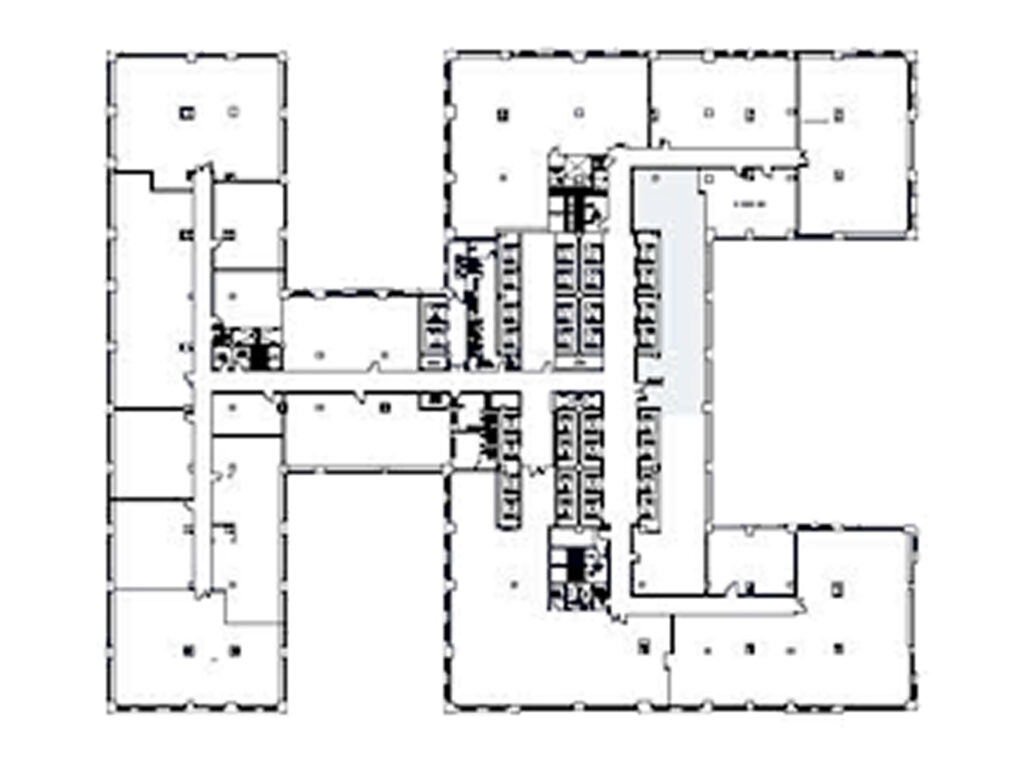
Lexington Avenue Partial Floor Office built within a partial eighth-floor installation at 420 Lexington Avenue, this 2,866 square foot office delivers a clean, linear layout designed around 22 workstation seats, 1 conference room, 1 pantry, and a defined reception point supporting a total headcount of approximately 23 people. The plan is organized as a long, efficient rectangle that runs parallel to a continuous window line, allowing the primary work area to benefit from consistent exposure along one side of the suite.

Entry leads into a compact but clearly defined reception area, where a small front-facing desk establishes a point of arrival and separation from the main work zone. This reception component is positioned along the interior side of the layout, allowing the remainder of the floor to open outward toward the windows. Immediately beyond, the space expands into the central open work area, where 22 workstation seats are arranged across two long benching rows. These desks are aligned in a symmetrical configuration, creating a structured environment that supports team-based workflows while maintaining clean sightlines from one end of the suite to the other.

Running along the perimeter, large windows extend the full length of the open area, bringing consistent daylight deep into the workspace and enhancing the sense of depth within the relatively narrow footprint. The ceiling plane features exposed ductwork and linear lighting that follows the length of the floor, reinforcing the directional flow of the layout and complementing the modern, minimal finish throughout.

At one end of the suite, a fully enclosed conference room is positioned adjacent to the window line, allowing it to function as a formal meeting space or executive office depending on tenant needs. This room is scaled to accommodate group meetings while remaining separate from the open workstation environment. Opposite this, a dedicated pantry is tucked along the interior wall, providing a discreet break area that does not interfere with the primary work zones. Nearby, a combined server room and storage area supports operational infrastructure without encroaching on usable office space.

The overall configuration is highly efficient Lexington Avenue Partial Floor Office, with minimal corridor loss and a direct relationship between reception, workstations, and support areas. While not a full-floor presence, the elongated footprint and uninterrupted window exposure create a strong sense of continuity and openness. The combination of 22 workstations, 1 conference room, 1 pantry, and a reception area within 2,866 square feet delivers a streamlined, plug-and-play environment ideal for teams seeking a dense, organized layout in a Grand Central-adjacent location within the Graybar Building.

 

Space Features:

  • 24/7 security
  • Bike storage
  • CCTV
  • Communal lobby space
  • Conference center
  • Fitness center
  • Furnished
  • General store
  • Key card building entry
  • Key card space entry
  • Loading dock
  • Lobby attendant
  • Messenger center
  • Property manager on-site
  • Shared pantry
  • Touchless turnstile entry
  • Transportation accessible
  • Turnstiles
This field is for validation purposes and should be left unchanged.
Get more info about this space

If you would like to receive additional information about this space, or you would like to setup a tour, please submit your details here.

Interest(Required)

Lexington Avenue Partial Floor Office

Get your top 10 report

Our insider knowledge and expertise included.
This field is for validation purposes and should be left unchanged.

Just tell us what you're looking for, and we'll get started.

We will filter through hundreds of NYC office listings for you and send a report directly to your inbox with the top 10 available office spaces that meet your needs. No fee to you!