Tuesday April 21, 2026

Grand Central Partial Thirteenth-Floor Installation

Grand Central

LISTING DETAILS FOR Grand Central Partial Thirteenth-Floor Installation

Unit Size 13716 SQ. FT
Type Direct Lease
Price CALL FOR PRICING

DESCRIPTION

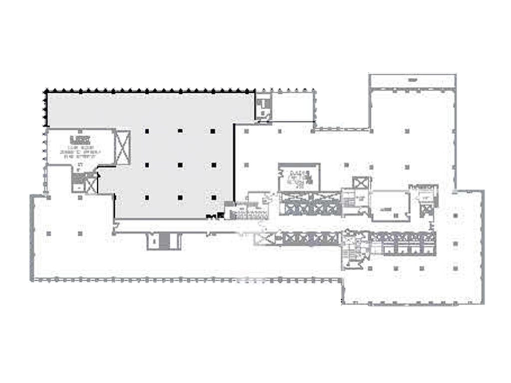
A highly built and efficiently planned partial thirteenth floor office totaling thirteen thousand seven hundred sixteen rentable square feet presents a fully realized workplace installation designed to support a staff of ninety-six people, anchored by a precise program of seventy-six workstation seats, seventeen private offices, three conference rooms, one reception area, and one dedicated pantry. The layout unfolds from a clearly defined entry point that leads directly into a formal reception zone, where a staffed desk establishes a front-facing presence while maintaining direct visual connection into the main working portions of the suite.

From reception, the floor opens into a large central open area where the seventy-six workstation seats are organized into multiple benching rows, aligned in clean, parallel runs that maximize efficiency while preserving circulation aisles between teams. The column grid is integrated seamlessly into this layout, allowing the workstations to be distributed evenly without interruption, creating a balanced and highly functional open office environment. This central zone acts as the operational core of the space, with direct adjacency to both meeting rooms and executive offices.

Running along the primary window line, a continuous row of seventeen perimeter rooms is built out, each enclosed with glass fronts and sized to function as private offices. These rooms benefit from consistent exposure to exterior windows, providing each office with direct access to daylight and views, making them suitable for executive use, senior staff, or client-facing functions. The linear arrangement of these offices creates a clean separation between focused work areas and the more active open workspace.

Three dedicated conference rooms are distributed strategically within the layout, including a large boardroom positioned off the main circulation path and two additional meeting rooms that can support smaller group sessions or internal collaboration. Each conference room is enclosed and proportioned to accommodate team meetings without encroaching on the open work environment. Near the center-right portion of the floor, a file and copy area is carved out to support daily operational needs, keeping equipment and storage centralized yet out of primary sightlines.

Toward the lower portion of the layout, a full pantry and break area is established, complete with seating and open space for informal gathering, positioned adjacent to a secondary conference room that can double as a training or team space. This amenity zone provides a clear separation from the primary workstations while remaining easily accessible to all staff. An additional information technology and server room is located nearby, ensuring that infrastructure is properly contained and supported.

Windows line multiple sides of the suite, allowing light to penetrate both the perimeter offices and portions of the open workspace, while the depth of the floorplate maintains a strong balance between enclosed and open environments. The combination of seventy-six workstations, seventeen perimeter offices, three conference rooms, and a total headcount of ninety-six positions this installation as a turnkey headquarters solution for a wide range of tenants seeking both density and private office presence within a single cohesive layout.

Space Features

  • Bar
  • CCTV
  • Cafe
  • Common area WiFi
  • Communal lobby space
  • Key card building entry
  • Lobby attendant
  • Messenger center
  • Property manager on-site
  • Restaurant
  • Turnstiles
This field is for validation purposes and should be left unchanged.
Get more info about this space

If you would like to receive additional information about this space, or you would like to setup a tour, please submit your details here.

Interest(Required)

Grand Central Partial Thirteenth-Floor Installation

Get your top 10 report

Our insider knowledge and expertise included.
This field is for validation purposes and should be left unchanged.

Just tell us what you're looking for, and we'll get started.

We will filter through hundreds of NYC office listings for you and send a report directly to your inbox with the top 10 available office spaces that meet your needs. No fee to you!