Tuesday May 26, 2026

Furnished Tudor City Suite

Grand Central
Furnished Tudor City Suite

LISTING DETAILS FOR Furnished Tudor City Suite

Unit Size 5840 SQ. FT
Type Direct Lease
Price CALL FOR PRICING

DESCRIPTION

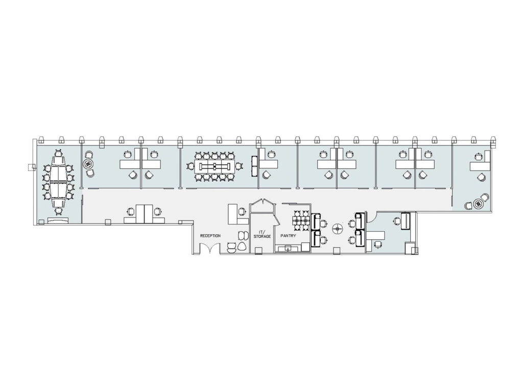
Furnished Tudor City Suite defined within 420 Lexington Avenue, Suite 710 presents a structured, perimeter-driven layout anchored by 9 private offices, 2 conference rooms, 6 workstation positions, 1 pantry, and a formal reception area supporting a total headcount of 17. The suite unfolds along a long, rectangular footprint that tracks the building’s exterior wall, allowing nearly every enclosed room to benefit from direct window exposure.

Entry is channeled into a dedicated reception zone positioned just off the main corridor, where a front desk and waiting area establish a clear point of arrival while buffering the workspace beyond. Immediately adjacent to reception, a cluster of support functions including an IT or storage room and a pantry are tucked along the interior core, keeping infrastructure centralized and preserving the window line for primary offices and meeting spaces.

Moving outward from reception, the plan transitions into a sequence of enclosed perimeter rooms that define the character of the suite. Along the windowed edge, 9 private offices are arranged in a linear progression, each sized to accommodate executive use, small team rooms, or focused work environments. These offices are interspersed with two larger conference rooms, both positioned along the glass line to create formal meeting environments with direct daylight and a sense of openness despite being enclosed. One conference room is scaled for boardroom-style meetings with a long central table, while the second supports more standard team gatherings or client presentations.

Centrally located within the layout, a modest open workstation area provides 6 dedicated desk positions, configured in a compact benching arrangement that allows collaboration while remaining secondary to the private office program. This balance makes the space particularly well suited for firms that prioritize enclosed offices but still require a small bullpen component for support staff.

The overall layout is efficient and corridor-light, with circulation running parallel to the perimeter rooms and tying all spaces back to reception. The continuous window line across one full side of the suite enhances usability of each office and conference room, while the interior core neatly consolidates pantry and support areas. Though not a full-floor identity, the elongated perimeter exposure and high ratio of windowed offices create a strong executive presence, making this installation especially compelling for professional services, legal, or advisory firms seeking a private-office-forward environment in a Grand Central location.

 

Space Features:

  • 24/7 security
  • Bar
  • CCTV
  • Cafe
  • Common area WiFi
  • Communal lobby space
  • Key card building entry
  • Lobby attendant
  • Messenger center
  • Property manager on-site
  • Restaurant
  • Turnstiles
This field is for validation purposes and should be left unchanged.
Get more info about this space

If you would like to receive additional information about this space, or you would like to setup a tour, please submit your details here.

Interest(Required)

Furnished Tudor City Suite

Get your top 10 report

Our insider knowledge and expertise included.
This field is for validation purposes and should be left unchanged.

Just tell us what you're looking for, and we'll get started.

We will filter through hundreds of NYC office listings for you and send a report directly to your inbox with the top 10 available office spaces that meet your needs. No fee to you!