Tuesday April 21, 2026

Full Floor 42nd Street Office Space

Grand Central
Full Floor 42nd Street Office Space

LISTING DETAILS FOR Full Floor 42nd Street Office Space

Unit Size 10824 SQ. FT
Type Direct Lease
Price CALL FOR PRICING

DESCRIPTION

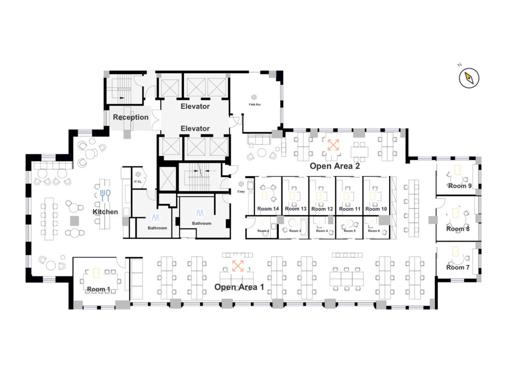
A full-floor installation totaling approximately ten thousand eight hundred twenty-four square feet is delivered here as a highly polished, prebuilt office with an estimated capacity of roughly two hundred thirty people, combining expansive open work areas with a strong mix of enclosed rooms and hospitality-driven amenities. The layout is organized around a central elevator core, from which a defined reception area introduces the space with a professional check-in point and immediate access to both collaborative and private work zones. From this central point, circulation flows naturally into two primary open work areas that stretch along the window lines, supporting a dense workstation layout with long benching runs and flexible team configurations.

The front-facing open area anchors the primary work environment, where rows of workstations are arranged to maximize efficiency while maintaining clear pathways and sightlines. This zone benefits from a continuous perimeter of windows along the avenue frontage, allowing the workspace to feel expansive and energized throughout the day. Along this same perimeter sits a large enclosed room that functions well as a formal boardroom or executive conference space, with proportions that comfortably support larger team meetings or client presentations. Adjacent to this, a secondary open work area occupies the opposite wing of the floor, offering a slightly more segmented environment that can be used for departmental separation or quieter team functions.

A row of smaller enclosed rooms lines the interior corridor, creating a bank of approximately eight to ten private offices or meeting rooms that can flex between executive offices, breakout rooms, or focused work suites. These rooms are evenly distributed and positioned for easy access from both open work zones, making them highly functional for day-to-day operations. Additional enclosed rooms are located along the far perimeter corners, each with window exposure, providing ideal settings for senior leadership offices or client-facing conference rooms that benefit from privacy and natural views.

The pantry and kitchen area sits along the side of the floorplate and is built out as a full-service café-style hub, complete with a large island, bar seating, and adjacent lounge and dining areas. This zone is supported by informal seating clusters and soft lounge furniture, creating a social center that doubles as a secondary meeting environment. Nearby breakout areas and a designated game or recreation space further enhance employee engagement and offer flexible collaboration settings outside of traditional workstations.

Ceiling heights reach approximately ten feet slab to slab, with an exposed ceiling aesthetic that incorporates visible ductwork, modern suspended lighting, and polished concrete flooring, reinforcing a contemporary and creative office identity. Multiple utility areas, including three dedicated support rooms and two restroom cores, are positioned around the central infrastructure to support operational needs without disrupting the primary workspace. The full-floor identity, combined with windows on multiple sides and a balanced mix of open and enclosed environments, delivers a turnkey office solution suited for a wide range of tenants seeking both scale and design presence in a Midtown location.

Space Features:

  • 24/7 access
  • 24/7 security
  • Communal lobby space
  • Furnished
  • General store
  • Key card building entry
  • Lobby attendant
  • Passenger elevators (4)
  • Property manager on-site
  • Turnstiles
This field is for validation purposes and should be left unchanged.
Get more info about this space

If you would like to receive additional information about this space, or you would like to setup a tour, please submit your details here.

Interest(Required)

Full Floor 42nd Street Office Space

Get your top 10 report

Our insider knowledge and expertise included.
This field is for validation purposes and should be left unchanged.

Just tell us what you're looking for, and we'll get started.

We will filter through hundreds of NYC office listings for you and send a report directly to your inbox with the top 10 available office spaces that meet your needs. No fee to you!